

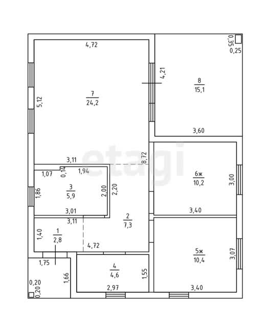
Планировки
Карта



















Дом, 83.4м², участок 4.6 сот.
Семейная ипотека
посёлок Константиновка, Гурьевский район
На карте
Хотите скидку?
Предложите свою стоимость!
Описание
Изменено: 11.03.26
ПОДХОДИТ ПОД СЕЛЬСКУЮ ИПОТЕКУ!!
Дом 83,4 м2 в коттеджном поселке «Гурьевские Соты» площадью 4 сотки подходящий под Семейную и Сельскую ипотеку.
- Объект возведен с применением надежных материалов и технологий, обеспечивающих долговечность и энергоэффективность.
- В доме оборудованы теплые полы.
- Монолитный фундамент толщиной 30 см с двойным армированием гарантирует устойчивость конструкции.
- Стены из газосиликатных блоков сочетают прочность с высокими теплоизоляционными свойствами.
- Керамическо-бетонная черепица на кровле отличается долгим сроком службы, а энергосберегающие стеклопакеты и входная дверь с терморазрывом минимизируют теплопотери и расходы на отопление.
- Поселок состоит всего из 26 домов, что формирует камерную и безопасную среду, идеальную для постоянного проживания.
- Район Гурьевска/Новой Константиновки активно развивается, предлагая растущую инфраструктуру при сохранении преимуществ загородной локации.
- Участок позволяет реализовать ландшафтный дизайн, организовать зону отдыха или детскую площадку.
- Данное предложение представляет собой сбалансированное решение для тех, кто ищет современное, экономичное жилье для жизни за городом без компромиссов в качестве строительства.
Характеристики
- Код объекта9943992
- Площадь дома83.4 м²
- Площадь участка4.6 сот.
- Комнатность2
- РемонтУлучшенная черновая отделка
- Год постройки2025
- СтеныГазоблок
- ОтоплениеЭлектрическое
- ЭлектричествоЗаведено
- ВодоснабжениеСкважина
Что-то не так с объявлением?
Сообщите нам, и мы разберёмся в проблеме
